Skip to main content

Coastal café, Chapel Fields

Design of a new café facility and destination venue at a leading holiday park on the Lincolnshire coastline.

Our approach 

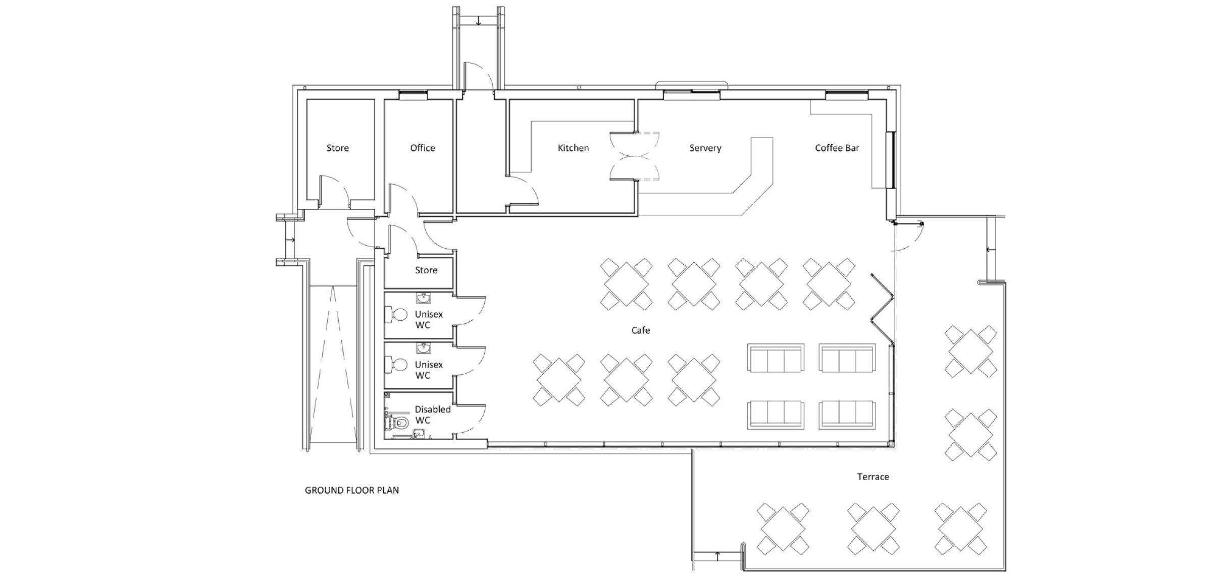
RDC was appointed by long-standing client GD Hardy Ltd to design a new café facility at Chapel Fields Holiday Park on the Lincolnshire coastline. The brief was to create an inviting destination venue serving both visitors to the park and the wider public, forming a focal point within a broader programme of park expansion and new holiday lodge development.

Working from initial concept through to Building Regulations, RDC developed a contemporary café building that responds to its coastal-edge setting while providing year-round functionality. The café sits at the northern gateway to the park, welcoming visitors on arrival and showcasing long views across the surrounding countryside. An external terrace wraps around the building, offering outdoor dining space and views across the nearby fishing lake.

A clear architectural strategy informed the building’s form and materiality. The design drew inspiration from mid-century modern coastal architecture on the west coast of the USA, with an emphasis on simple lines, honest materials, and a strong connection to the landscape.

Initially conceived with cedar cladding to complement its coastal setting, the scheme was later refined through value engineering, substituting timber for metal cladding panels while retaining the intended aesthetic and design integrity. The café features a sweeping monopitch roof and extensive glazing, creating a bright and open dining space.

RDC also produced 3D visuals to support community engagement, aid client decision-making and guide interior design development. These visuals helped establish the desired industrial-influenced character for the internal environment, aligning with the client’s aspirations for a robust and timeless feel.

‘The Den’ opened in Summer 2022 and has since established itself as a lively social hub for the holiday park, a modern, welcoming space serving guests from morning through to night and contributing to the ongoing enhancement of the wider Chapel Fields destination.


With the goal of catering for an expanding visitor base, and as part of a larger masterplan for new holiday lodges and the park’s expansion, ‘The Den’ opened its doors in Summer 2022.

Recent Projects

View all projects

Northern Central Green, Handley Chase, Sleaford

Northern Central Green forms a central public open space within the Handley Chase Sustainable Urban Extension, providing recreational opportunities, play facilities, and important pedestrian and cycle connections for the growing community in south Sleaford.

Landscape Architecture

Clean Planet Energy Pyrolysis Plant, Sleaford

A pioneering plastics-to-fuel facility turning up to 25,000 tonnes of waste plastic into low-carbon oil each year.

Town Planning

Land off Vasey Close, Bassingham

Residential development with associated landscaping and Biodiversity Net Gain (BNG) provision.

Landscape Architecture

Have a project in mind?


Contact the team to discuss your project

Contact us